The Theo
1030 Danforth Avenue
Toronto, Canada
53 Units
325 m² Retail space
50 Parking stalls
Residential, Retail, Condominium, midrise, mixed use
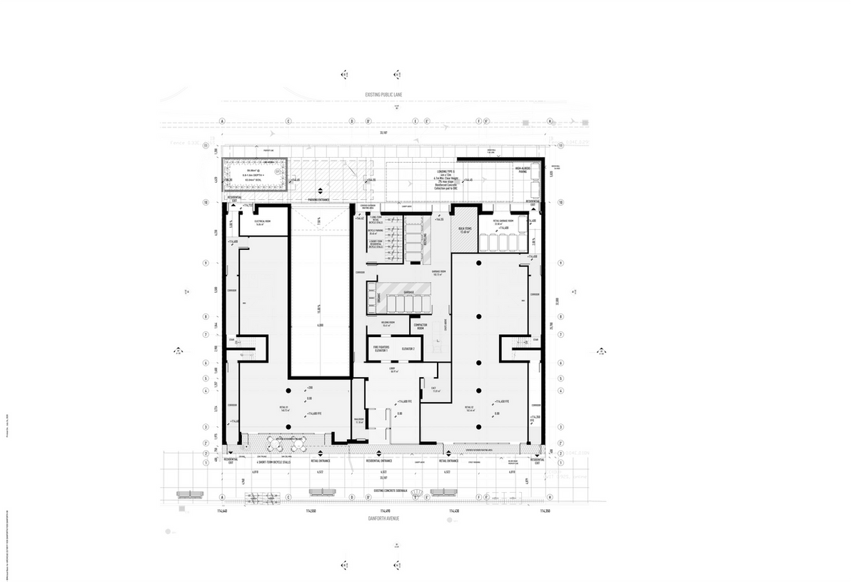
The Theo is an 8- storey mid-rise residential building located along Danforth Avenue in Toronto’s east end. Two retail units are located at the grade. Three levels of parking are accessed via the rear lane.
The building will emphasize a strong use of brick through the use of a high performance wall assembly using thin veneer masonry. This offsets the need for a large mechanical penthouse at the top in favour of a decentralized VRF system. The structural system will use a steel frame with composite slabs. The tailored brick facade is a deferential nod to Toronto's legacy of brick buildings along its avenues.
The Theo
1030 Danforth Avenue
Toronto, Canada
53 Units
325 m² Retail space
50 Parking stalls
Residential, Retail, Condominium, midrise, mixed use
The Theo is an 8- storey mid-rise residential building located along Danforth Avenue in Toronto’s east end. Two retail units are located at the grade. Three levels of parking are accessed via the rear lane.
The building will emphasize a strong use of brick through the use of a high performance wall assembly using thin veneer masonry. This offsets the need for a large mechanical penthouse at the top in favour of a decentralized VRF system. The structural system will use a steel frame with composite slabs. The tailored brick facade is a deferential nod to Toronto's legacy of brick buildings along its avenues.
- Page 1































