University Towns
1800 Simcoe St North
Oshawa, Canada
16,470 m²
170 Residential Units
3 Retail Units
Residential, Lowrise, midrise, wood frame
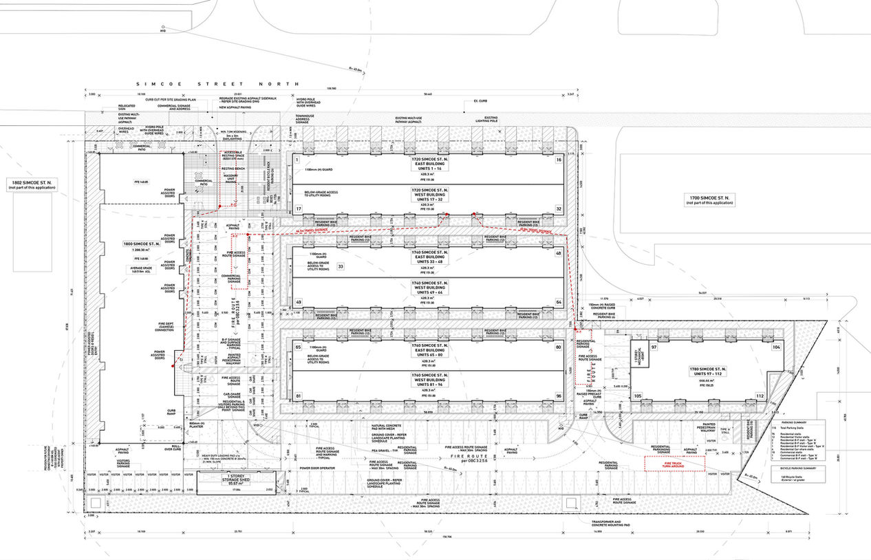
University Towns is a condominium-based development situated near the Oshawa University of Information Technology (OUIT). Created out of a demand to provide quality student housing, the dominant 3-bedroom unit provided easy access to first-time purchasers including students alike.
Comprised of 112 stacked townhouse units and 58 apartments, 80% of suites are 3-bedroom units. The midrise building is designed to meet the Oshawa Accessibility Design Standards (OADA). The project uses wood-frame construction in both the townhouses and the midrise block.
The midrise building also commercial units at grade along with student-oriented amenities such as meeting rooms, media rooms, fitness gym and yoga space, property management offices, games room with lounge, full kitchen, and outdoor amenity terrace.
Standard Practice led the consultant team through all stages of planning, design, contract documents and construction administration.
University Towns
1800 Simcoe St North
Oshawa, Canada
16,470 m²
170 Residential Units
3 Retail Units
Residential, Lowrise, midrise, wood frame
University Towns is a condominium-based development situated near the Oshawa University of Information Technology (OUIT). Created out of a demand to provide quality student housing, the dominant 3-bedroom unit provided easy access to first-time purchasers including students alike.
Comprised of 112 stacked townhouse units and 58 apartments, 80% of suites are 3-bedroom units. The midrise building is designed to meet the Oshawa Accessibility Design Standards (OADA). The project uses wood-frame construction in both the townhouses and the midrise block.
The midrise building also commercial units at grade along with student-oriented amenities such as meeting rooms, media rooms, fitness gym and yoga space, property management offices, games room with lounge, full kitchen, and outdoor amenity terrace.
Standard Practice led the consultant team through all stages of planning, design, contract documents and construction administration.
- Page 1



























































